ペットが飼えて駅近な、その上一風変わったお部屋のデザイナーズマンションをご紹介!
今回の物件はシステムキッチンとリビングダイニングにかなり特徴があります!
日比谷線「小伝馬町駅」から徒歩2分の『アプレシティ日本橋小伝馬町』
ダイニングキッチンの壁にある窓際に設置されたガラスタイルの壁が、吹き抜けの明かりを通して幻想的に輝く!?
文章では何が何だかわからないと思いますので写真多めでご紹介します!
このページでわかること
小伝馬町駅近!ペット可!1DKデザイナーズ『アプレシティ日本橋小伝馬町』

交通
- 東京メトロ日比谷線「小伝馬町駅」徒歩2分
- JR総武線「新日本橋駅」徒歩5分
構造
- 住所:東京都中央区大伝馬町2-13
- 構造:鉄筋コンクリート造
- 階層:地上13階(地下1階)
- 総戸数:30戸
- 設備:オートロック、宅配ボックス、メールボックス、独立洗面台、浴室換気乾燥機、BS/CS、CATV
- その他:ペット可
『アプレシティ日本橋小伝馬町』は、東京メトロ日比谷線「小伝馬町駅」から徒歩2分、JR総武線「新日本橋駅」徒歩5分という駅近物件!

マンションの外観は、白いレンガの壁で高級感があります。
さらに階段を少し下った半地下の入り口が非常に洒落てます!

右手の扉は駐輪場へ続く道です。

それではエントランスへ入りましょう!

エントランスは右手にメールボックスとオートロックがあります。
スペースは狭いです!

オートロックの先には味のある廊下。

グレートーンのレンガ風の壁に、天井まで続く木目のパネルが等間隔で続く不思議な廊下。

振り返ったところ。
エレベーターまでの通路はどこかホテルのような雰囲気も感じさせますね。

廊下の途中にあるこちらのドアは駐輪場への出入口です。
消火器もあります!

一番奥がそのままエレベーターになっています。
エレベーターも木目のパネルと併せた面白いデザイン。

それではエレベーターに乗って、今回ご紹介するお部屋がある5階へ向かいましょう!

エレベーターは6名乗りです。
壁には吸音や傷防止の効果があるフェルト材が取り付けてあります。

5階のエレベーター前がこちら。

エレベーターのすぐ右横は階段になっています。

逆側に廊下が続きます。

今回のお部屋は廊下の一番奥。

玄関のドアもブラックながら木目調。
スクエアに統一されたドアノブやお部屋の表式、インターフォンのデザインもいいアクセント。

一体どんなデザイナーズルームが待っているのでしょう!?
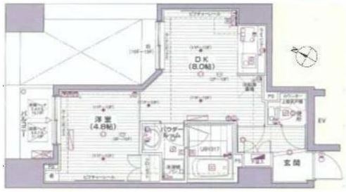
ガラスタイルが幻想的!キッチンが広い『アプレシティ日本橋小伝馬町』503号室◇1DK(32.71㎡)

- 賃料:138,000円
- 共益費:5,000円
- 敷金/礼金:1ヶ月/1ヶ月
- 開口向き:北西
- 契約期間:普通借家契約(2年)
それでは503号室のお部屋へお邪魔します!
細かいところですが、玄関のドアは外側と内側で色が違ってますね!
温かみのあるベージュになっています。
ホワイトの壁と、ピンクベージュの大理石調の床も含めて暖かみのある空間になっています。
ペット可の物件なのですが、ここでペットが出迎えてくれると考えると何だか嬉しくなります!

シューズボックスは少しわかりにくいですが、玄関から上がって左手側にあります。
収納スペースは2人でも余裕のあるゆったりした広さです。

玄関から廊下を見たところ。
右がトイレで、左のダークブラウンのトビラがリビングダイニングへ続きます。

トイレは少し狭めですが、上部に収納棚やタオル掛け、カウンターもついています。
カウンターには芳香剤や小物をディスプレイする楽しみもありますね。

収納棚には仕切りがあるのも嬉しいところ!

それでは左のトビラからお部屋へ行ってみましょう!

ドアを空ければ正面に壁いっぱいのガラス窓!
ガラスタイルを採用し、壁一面が透けているデザインのリビングダイニングなんです!

そんなガラス壁の真向いが、システムキッチンになっています。

ダイニングキッチンは8帖。
少し変わったL型の間取りなので、家具は選ぶ必要があるかもしれません!

壁に埋め込まれた形の、スッキリしたシステムキッチン!
コンロこそ2口と普通ですが、広い洗い場と作業スペースがウリです。

さらに注目なのがキッチン自体の奥行き!
カウンターのようなスペースが広がっていて、調味料の常設はもちろん、調理中の皿を置いたり料理の幅自体も広がります。
うちわを置いてみましたが、通常サイズのトートバッグが縦に入るぐらいの奥行きです。

換気口は最新のもので、すっきりとしたデザインです。
上の棚を開けてみましょう。

二段の仕切りがついて、キッチンスペース同様奥まで広い作りです。

下部は最新のタイプに比べると仕切りがないため収納に工夫が必要ですが、広いです!

正面のガラス壁。

向かいの棟の階段がすぐ目の前に!
実際に結構近く、階段を昇り降りする人とは普通に目が合いそうです。

通りではなく、吹き抜け部に窓があるという構造です!
すぐ右に梁があり、なぜか落し物が。
下を向けばマンションの階層が確認できます。

見上げれば頂上からは陽の光がこぼれています。
というわけで、窓の日当たり自体はあまりよくはありません。

それでは次に洗面所、バスルームへご案内します。

洗面所は大きなミラーが特徴的な最新型の独立洗面所です。

右側の収納棚は敷居が多く、小物もしっかりと収納できます。

洗面台も大きく、手洗いでの洗濯もできそう。
蛇口は通常タイプとシャワータイプに切り替えられる仕様です。

こちらの収納はキッチンよりも機能的。

それではバスルームへご案内します!
外からでもバスルームの広さを感じられます。

バスルームは余裕があるサイズで、ペットをお風呂に入れる時も安心な大きさです。


壁にはバスグッズも引っ掛けられます。

こちらはバスルームからリビングへ出たところ。
左側のお部屋へ行ってみます!


寝室は4.8帖とキッチンと比べると少し狭く感じます。
今回照明が取り付けられていなかったため、暗くなっています。

全体的にベージュの木目の色合いがお部屋を広く感じさせます。

窓際の端には収納棚のスペースがあります。

幅は狭いですが、高さもあり棚の配置も変えられるので便利そう!
お部屋をすっきり使いたい方にはちょっとした空きスペースに棚はありがたいですね。

寝室はキッチンとの間に仕切りがないように見えますが、スライドドアがあります。
キッチンの匂いが寝室に入ってくるのを避けられます。

クローゼットもそれなりに奥行きがあります!

壁にはギャラリーレールがあります。
カンタンな収納棚やポスターなどインテリアなどを掛けてインテリアが楽しめます。

それではバルコニーへお邪魔します!

室外機もあるためかなり狭いです。

左側。

右側。

目の前までマンションが隣接しているため、バルコニーからの日当たりはあまり期待できません。
洗濯物も外で干すのではなく、室内や浴室乾燥機を使ったほうが乾きが早いでしょう。
バルコニーの手すりは厚めです。

というわけで洗濯物が干せるように天井にはホススクリーンが取り付けられています!
突っ張り棒を入れて室内干しができますよ。

以上でご案内は終了です。
『アプレシティ日本橋小伝馬町』はどこかデザイナーズのホテルを思わせるマンションでした。
印象的なのは奥まで広いダイニングキッチン!
そしてその真正面の壁一面に渡るガラスタイルの壁はとても幻想的です。
お部屋の設備も最新のもので、気持ちよく使うことができます。
さらにペット相談可なので、ペットがいても安心な設計になっています。
デメリットとしては、やはりバルコニーの日当たりの悪さ。
間近に建物が隣接しています。
寝室は4.8帖ですのでお部屋の印象としては一人暮らし向きです。
『アプレシティ日本橋小伝馬町』の押さえておきたいところまとめ
- 「小伝馬町駅」徒歩2分の駅近
- デザイナーズホテルのようなエントランスやお部屋
- 壁一面にガラスのタイルが施されいる大きな窓。景色も吹き抜けが幻想的!
- 奥行きのある広いダイニングキッチン!
- バルコニーからの眺めや日当たりは良くない
- ダイニングの豪華さに比べて寝室が少し狭いので一人暮らし向き
かなり変わったデザインのお部屋でしたが機能性にも好感が持てます。
最後までご覧くださり、ありがとうございました!
最後にこちらの物件の動画を紹介します!
アプレシティ日本橋小伝馬町 503号室めぐり。
アプレシティ日本橋小伝馬町 503号室からエントランスへ
アプレシティ日本橋小伝馬町 日比谷線「小伝馬町駅」駅まで。












